Trèfle
Noten auf der Website:
4,33
/5
(3 Meinung)
Array
- W-lan

- Garagenparkplatz

Über
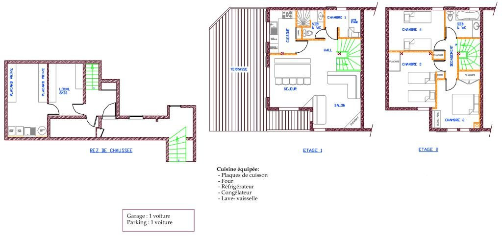
Wohnung für 8 Personen mit 3 Schlafzimmern, Terrasse und Balkon. Die Skipisten sind vom Chalet aus erreichbar.
- Stockwerk :
- 1. Stock
- ZUGANG (sait dem Haupteingang) :
- 1. Stockwerk
- LIFT :
- No
- Schlafzimmer 1 :
- 1 Doppelbett(en) (160cm)
- Schlafzimmer 2 :
- 2 Einzelbett(en)
- Schlafzimmer 3 :
- 2 Einzelbett(en)
- Schlafzimmer 4 :
- Schlafzimmer-Kabine
- 1 Stockbet (2 x 1 Person)
- Badezimmer :
- 1 Badezimmer mit 1 Badewanne
- 1 Badezimmer mit 1 Dusche
- WS :
- 2 WS im Badezimmer
- WEITERE INFORMATIONEN :
- Apartment mit 2 Etagen
Ausrüstung & Services
- Küchenausstattung :
- Elektroherd
- Mikrowelle
- Geschirrspüler
- Kühlschrank
- congélateur
- Fondue-Service
- Raclette-Apparat
- Kaffeemaschine
- Pad-Kaffeemaschine Nespresso
- Ausstattung Unterkunft :
- Fernseher
- Wi-Fi-Verbindung
- KAMINOFEN - HOLZOFEN :
- Kaminofen
- Reinigungsgeräte :
- Waschmaschine
- Wäschetrockner
- Fön
- AUSRÜSTUNG BABY (auf Anfrage der Wohnungseigentümer) :
- Babybett
- ÄUßERE :
- Terrasse
- Balkon
- Parkplatz Garage :
- Garage
- Äußerlicher Parkplatz
- 1 Verfügbare Plätze
- TIERE :
- Tiere verboten
Hinweis
- Im Aufenthalt inbegriffen :
- W-lan
- Nicht im Aufenthalt inbegriffen :
- Kaution 800 €
- Endreinigung:
- Blätter:
- Badezimmerwäsche:
Verfügbarkeit & Preise
FICHE_INFO_SIMPLE_LIBELLE_DESTINATION
127 route des Outalays
Le Chinaillon
74450
LE GRAND BORNAND
GPS-Koordinaten
Breitengrad : 45.96750
Längengrad : 6.44984
- Entfernungen :
- 1000 m Des Zentrums von Grand-Bornand Chinaillon
- 1000 m vom Freizeitpark aus
- 50 m Des Stoppens Schiffchen im Sommer
Meinung
Noten auf der Website:
(3 Meinung)
4,33
/ 5
Auf der Website hinterlassene Meinungen:
Dezember 2024
Nathalie
Plus de 50 ans
Femme
Note:
4
/ 5
AVIS_REDIGE_LE 26/12/2024
August 2024
MICHELLE
Plus de 50 ans
Femme
Note:
4
/ 5
AVIS_REDIGE_LE 20/08/2024
Dezember 2023
GERALDINE
35 à 50 ans
Femme
Note:
5
/ 5
Tres bien
AVIS_REDIGE_LE 02/01/2024
Meinungen nach Profil






























